From Idea to Built
Most building projects start with uncertainty — how it will look, what to change, how much it will cost, and how to move forward.
This process is designed to bring clarity before construction begins. A clear path from initial ideas to buildable drawings.
A clear path from initial ideas to buildable drawings.
Initial Consultation
We start with a conversation about your project — what's not working, what you're trying to achieve, and what success looks like. This step helps define direction before any decisions are made. Typically 20–30 minutes.
Design Direction
Based on that conversation, I develop a clear approach. We review layout ideas, discuss what changes make sense, and evaluate options before moving forward. The goal is to resolve the project at a conceptual level so decisions are made with clarity. Review meetings offered online.
Construction Drawings
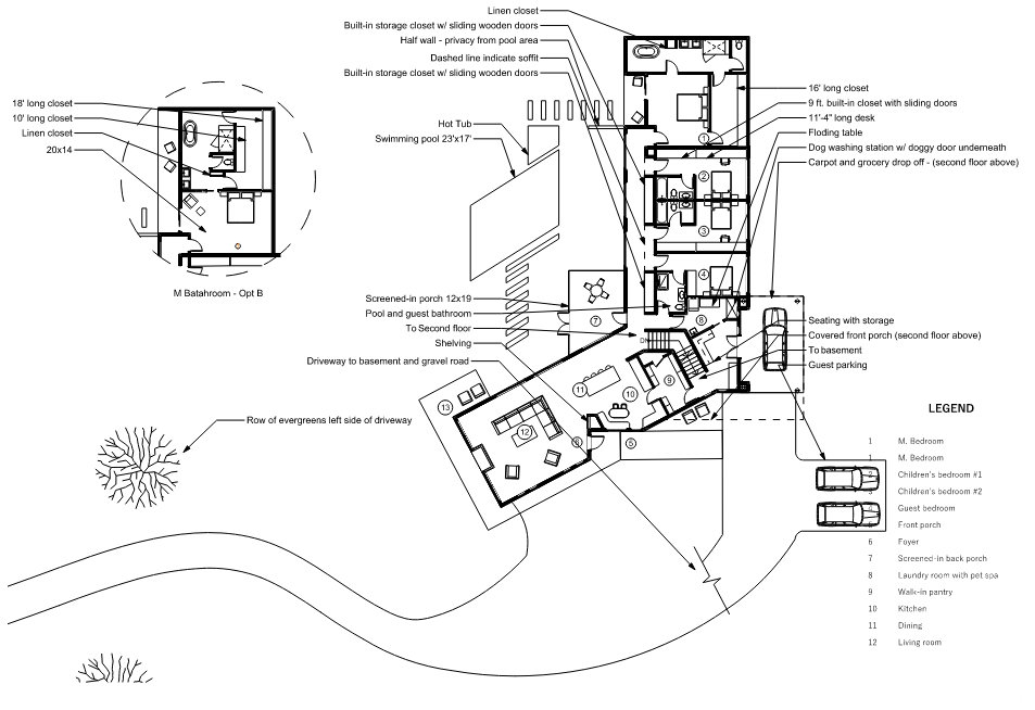
Once you're satisfied with the design direction, I develop a full set of drawings used by builders to price and construct the project and to support building permitting. These drawings define scope and reduce uncertainty during construction.
Construction Support
I remain available during construction to answer contractor questions, review substitutions, and make sure the built result matches the design intent. This keeps the project on track from drawings to finished building.
Fees are scoped per project based on size, complexity, and services required.
Contact me for a project estimate — the first conversation is always f
Why This Matters
Projects built without clear drawings often lead to confusion, delays, and cost overruns.
Resolving the project on paper first allows construction to move forward with clarity.
Working Together
The process remains consistent across residential and commercial projects, adjusting based on scale and complexity.
